Please wait
Menu
Country:
Turkey
City:
Ankara
Adress:
Çankaya, Ankara
background
project

LAB Alumni Center:
A Hybrid Use of Space

Interior Design Studio VI
Scroll Down
01
Goal

Project Brief

LAB Alumni Center serves different groups of people with an emphasis on Bilkent senior students, graduates, alumni and selected acquaintances. It is considered to be located close to the east campus of Bilkent University, right above/next to Sports International facility. It is a two-storey building with an area of approximately 1,800 m2. It is a multifunctional project where the aim is to think of functions as opportunities for people to discover and express themselves through their interactions with space that allows working, socializing, relaxing, hobby activities, etc. with hybrid use. A further consideration is to design against/with the pandemic wich may imply providing social distances, ventilation and screening strategies.
Generation Z is considered to be the main user group as residents of this building. In terms of needs and expectations, the place reflects some notions and emotions, such as novelty, creativity, mobility, adaptability, both permanence and temporality, ease of use, practicality, etc.
Spring 2020-2021, Individual Project

02
Presentation

Visual Gallery

conceptual study
project

Concept Board

Sponsor companies, design idea and building functions
conceptual study
project

Mood Board

Mood inside the building
 
technical drawing
project

Site Plan

Showing near environment
 
technical drawing
project

East Elevation

Building Facade
technical drawing
project

South Elevation

Site Silhouette
technical drawing
project

Ground Floor Plan

(+0.60) Level
3d render
project

Entrance Area

Direct view when people enter the building
 
3d render
project

B&O Showroom

The showroom is located at the right side of the main entrance
3d render
project

Reception

Reception is designed with the same language as building itself
3d render
project

Lounge Area

Lounge is located at both sides of the vertical circulation allowing people to wait, gather, rest
3d render
project

Co-Work Entrance

Entrance for the co-work area is controlled by card entry system
3d render
project

Co-Work Area

Designed as an open plan, flexible and multi-functional working space is created
3d render
project

Co-Work Area

Wooden sticks that stabbed to mezzanine floor, provides public-private relationship and visual connection
3d render
project

Co-Work Area

Two-storey high Hachette library serves both ground and mezzanine floor
 
3d render
project

Co-Work Area

Curtain and pivotted boards can be used by workers for hybrid working functions
 
3d render
project

Co-Work Area

Wide perspective of co-work area
 
3d render
project

Co-Work Outdoor

They can work, gather, rest or have meetings also at the outdoor co-work area!
3d render
project

Restaurant

Restaurant is not only for workers but also can be used from outcomers.
3d render
project

Restaurant

Terrace can be used when the weather is nice
 
technical drawing
project

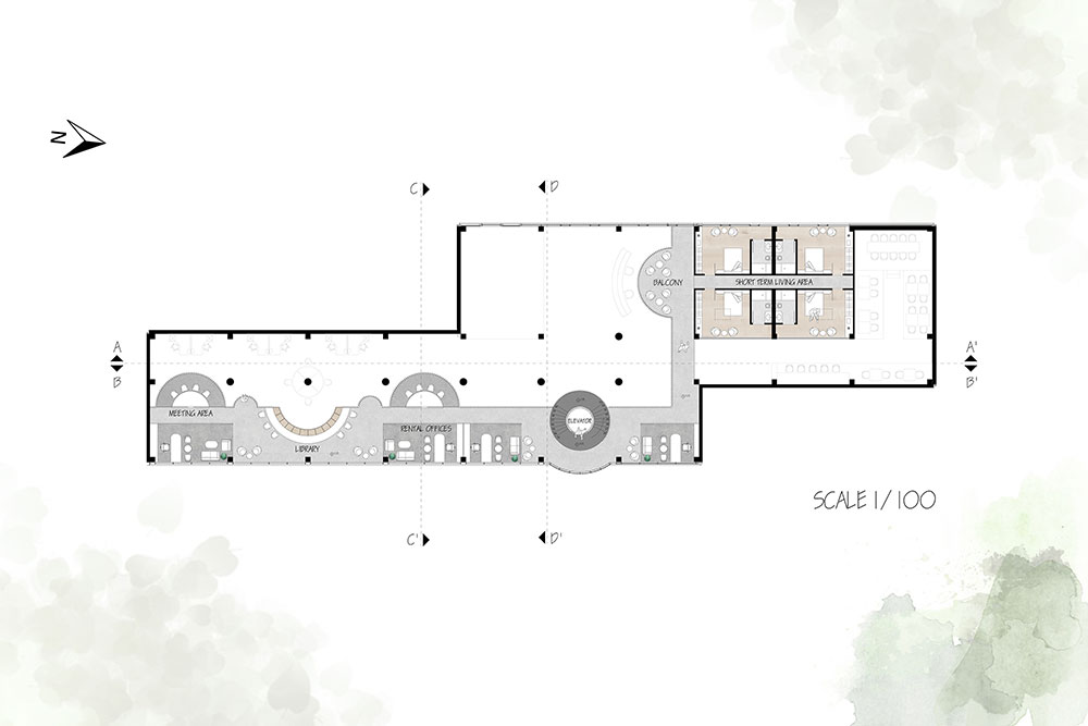
Mezzanine Floor Plan

(+3.30) Level
 
3d render
project

Mezzanine Floor

Building facade is enlarged and shapened to provide enough space for circulation
3d render
project

Rental Office Area

People who come to Ankara for a business and need a temporary office have a chance to rent one
 
3d render
project

Mezzanine Corridor

Library is also accessible from mezzanine level
 
 
 
3d render
project

Meeting Balcony

Private meeting balconies can be used for special business meetings. It has a glazed sliding door that provides privacy and a white board for flexible business purposes
3d render
project

Balcony View

A general view from the rental short-term living quarter's balcony
3d render
project

Balcony View

General view of the building
 
technical drawing
project

Basement Floor Plan

(-3.70) Level
 
3d render
project

Mezzanine Level

Spiral staircase and tubular elevator in the middle that leads people to basement floor
 
 
 
3d render
project

Recording Studio Area

There is a level difference at this part of the basement level which is accesible from a ramp and stairs. Recording studios are located like an island
 
3d render
project

Recording Studio

Two recording studios include different musical equipments from each other according to the needs. In front of each, there is lounge for people to wait their turns or listen to the current recording
3d render
project

Recording Studio

Since the studios are located at the middle, the rest of the space is used for exhibiting the posters of old music bands and albums
3d render
project

Linked-in Entrance

Linked-in career center is located at the left wing of basement floor. There are several activities in this center.
3d render
project

Linked-in Career Center

This center is to inform and help students or any person who want to apply for a job, learn more about companies and develop their CV
3d render
project

Linked-in Workshop

There are two workshop area wich is seperated with a curtain. The space can be enlarged if the number of attenders increase. CV workshops or any other related activites can be held at this area
3d render
project

Linked-in Multipurpose

This corner is designed to be used for giving lectures or small conferences from the company owners for the students who are curious about the related company or job positions
 
3d render
project

Linked-in Multipurpose

It is a flexible working area which can be used for different purposes such as job interview simulations
 
 
3d render
project

Clinic Coffee Entrance

Clinic Coffee provide the need of coffee shop in the LAB, located at the basement level
 
3d render
project

Clinic Coffee

Outcomers are welcomed beside the main users in the building. Also it has a terrace for people to have their coffee, dessert, etc. at the outside
3d render
project

Clinif Coffee

It has a minimalist and modern design which is compatible with the rest of the building
 
technical drawing
project

Section AA'

 
technical drawing
project

Section BB'

 
technical drawing
project

Section CC'

 
technical drawing
project

Section DD'

 
technical drawing
project

B&O Showroom Details

Showroom Plan and RCP
technical drawing
project

B&O Showroom Details

Showroom Section and Elevation
3d render
project

B&O Showroom

 
3d render
project

B&O Showroom

 
3d render
project

B&O Showroom

 
technical drawing
project

Vertical Circulation

Staircase Plan
technical drawing
project

Vertical Circulation

Staircase Section




More projects

Similar projects

Slider Navigation
interior design
project

Community Spirit Center

Interior Design Studio I
Fall 2019-2020
interior design
project

Assisted Living Center

Interior Design Studio V
Fall 2020-2021
interior design
project

Young at Heart

Product Detailing
Spring 2019-2020
interior design
project

Residence on Rails

Advanced Detailing Studio
Fall 2020-2021
interior design
project

An Earring Store

Professional Practice
Spring 2020-2021
interior design
project

2020 Tokyo Olympics

TV Set Design
Spring 2020-2021
sketches
sketches

Hand Works

Sketches
drawings
drawings

Art Works

Drawings