Please wait
Menu
Country:
Turkey
City:
Ankara
Adress:
Çankaya, Ankara
background
project

A New Phase in Life:
Supported Independence

Interior Design Studio V
Scroll Down
01
Goal

Project Brief

The aim is to design an assisted living senior center with private quarters for long or short term living that have a direct connection to public support services, such as nursing, catering, cleaning, etc. The building housing the function is Refik Saydam Hıfzısıhha Enstitüsü in Sıhhiye, Ankara. It is a two-storey building with an area of approximately 2,000 m2. Since the target group was elderly people, the design shaped according to their special needs and conditions.
Fall 2020-2021, Group Project

02
Presentation

Visual Gallery

conceptual study
project

Concept Board

Design idea, elements and considerations
 
 
 
technical drawing
project

Site Plan

A large garden is designed according to elderly needs and conditions. They can walk, sit, exercise, plant, enjoy the pool and spend time when their loved ones come
3d render
project

Outdoor Activity Area

Outdoor activities such as painting, playing games, etc. can be held during nice weather
 
 
3d render
project

Outdoor Activity Area

Butterfly garden and pond is located outside for various hobbies
 
 
3d render
project

Outdoor Activity Area

Outdoor garden can be reached from the controlled entrance in reception area
 
 
technical drawing
project

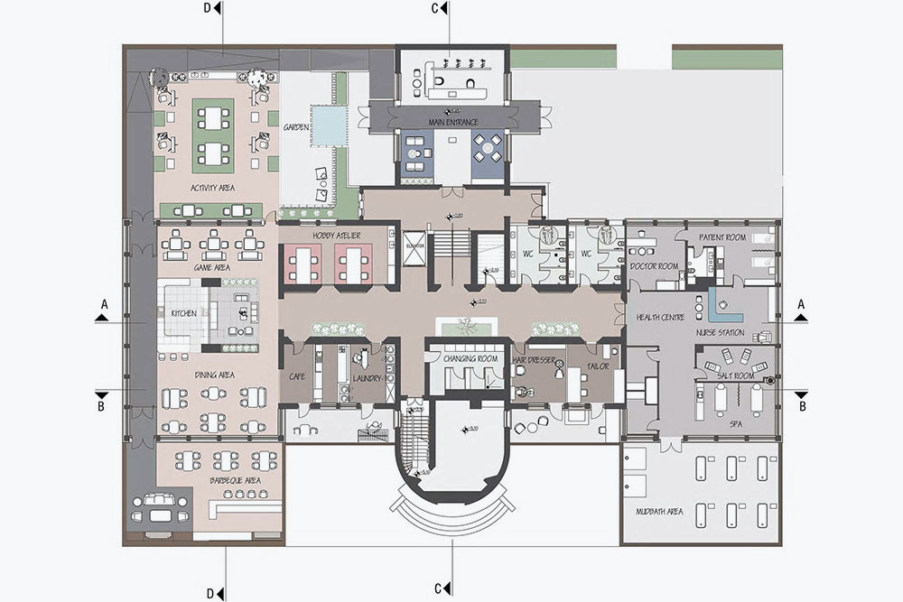
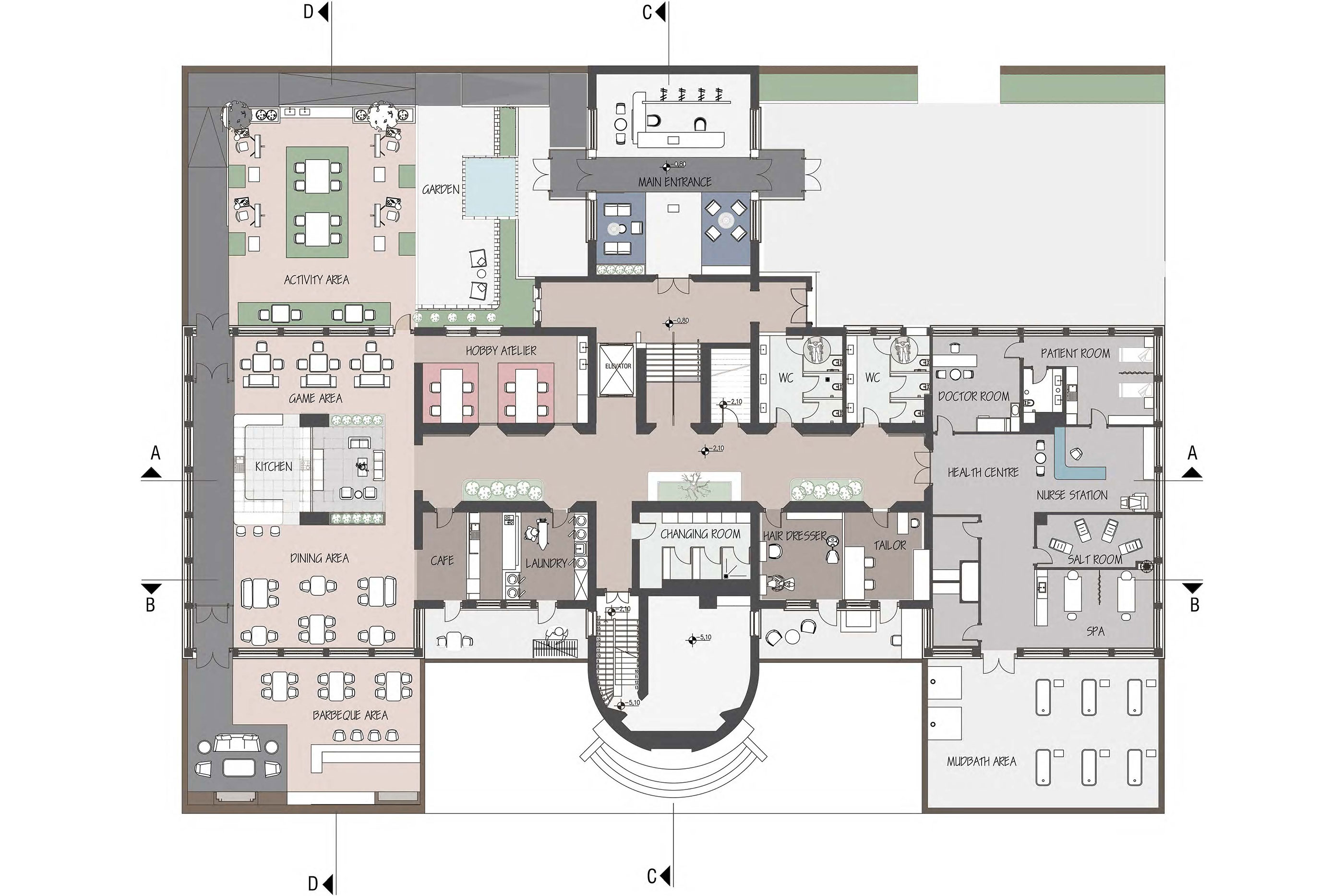
Basement Floor Plan

At this level, left wing is reserved for main living area of the residents, highlighted with shades of pink while the right wing is reserved for health center, highlighted with the shades of blue
3d render
project

Basement Corridor

There is a tree which starts at the basement level continues until the end of mezzanine level
 
3d render
project

Basement Corridor

In this wing, shades of pink creates color-coding for elderly to remember where they are easily. All the functions are labelled with a signboard
3d render
project

Living Area

At the middle, there is an area for elderly to watch television, chit-chat and read books
 
3d render
project

Kitchen

Kitchen is for both residents and the food handlers. Residents can cook themselves and serve to their friends. Also their meal is being prepared in this kitchen
3d render
project

Dining Area

Dining area can be used during meal times. Also the residents can use outdoor dining area for dining or barbeque
 
3d render
project

Game Area

Game area is provided to have fun and quality time. The seating units are designed according to store gaming boxes
 
3d render
project

Hobby Atelier

In here, they can do artwork, painting, ceramic, sewing, etc. whatever they want. They can also move their equipments to the outdoor garden from the back door and enjoy the weather
 
technical drawing
project

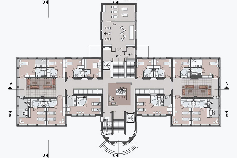
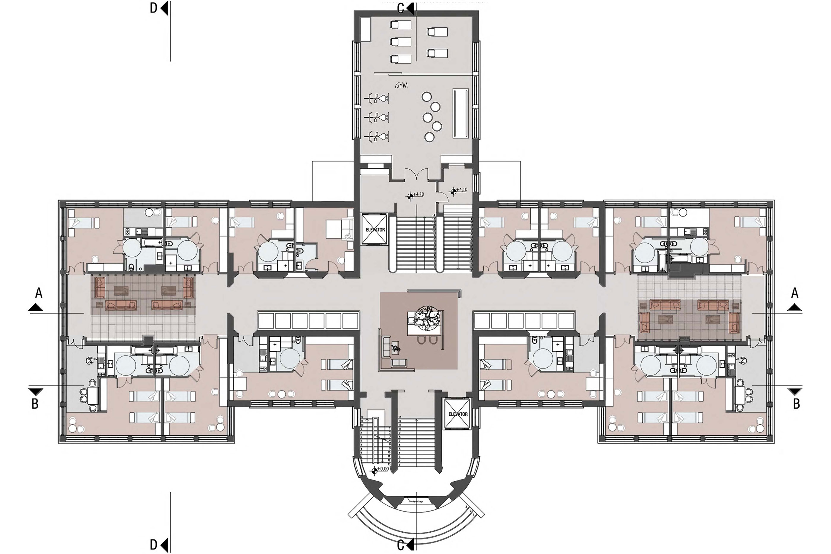
Ground Floor Plan

Ground floor is reserved for the accomodation purposes. The rooms' size and included equipments varies according to the user type such as one person or two, short term or long term, needing assistance or not.
3d render
project

Gathering Area

At the middle, there is a gathering area created around the tree. The wings are color-coded. Left wing is emphasized with yellow color while right wing is coded with green. Also each resident's door color has the shades of the wings color
3d render
project

Gathering Area

People can spend time at here outside their rooms. There is also a small kitchenette for them to get some tea or coffee
 
3d render
project

Inner Patio

There is an inner patio at both wings. It is designed to create a homealike feeling, familiarity and intimacy. Patios are coded with the same color as their wing has
3d render
project

Inner Patio

Elderly can grow pots and hang them on this space. There are shelves for them to put their favorite books resembling their home environment
technical drawing
project

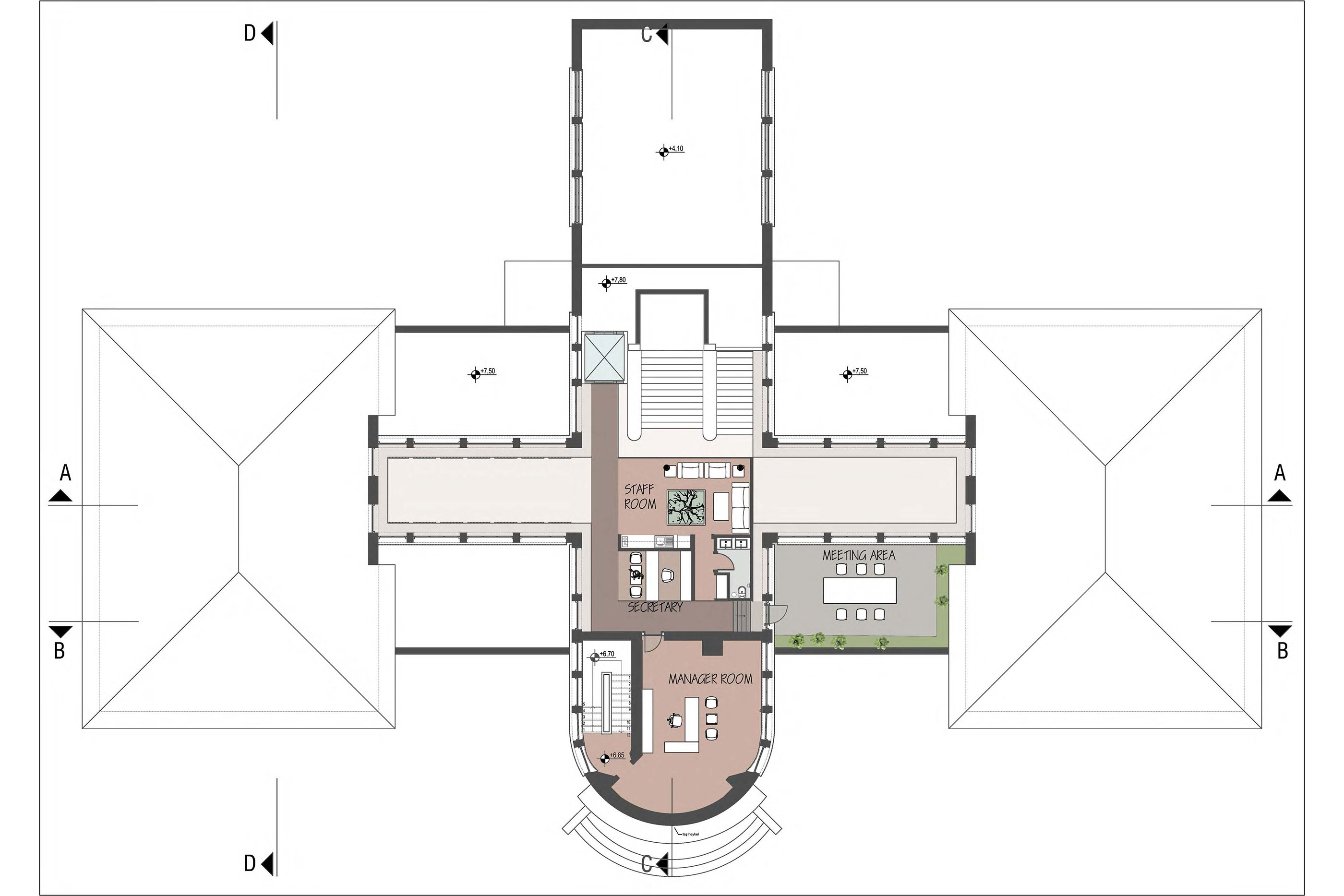
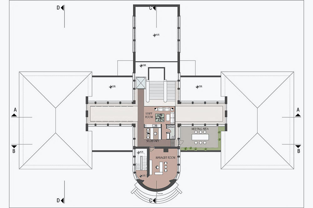
Mezzanine Floor Plan

At this level, staff can rest and spend time. Also manager room is located here and it has terrace which can be used as a meeting area
technical drawing
project

Section AA'

 
 
 
technical drawing
project

Section BB'

 
 
 
technical drawing
project

Section CC'

 
technical drawing
project

Section DD'

 
technical drawing
project

Bedroom Drawings

 .
technical drawing
project

Bedroom Drawings

 
3d render
project

Bedroom

 
3d render
project

Bedroom

 
3d render
project

Bedroom

 
3d render
project

Bedroom

 
technical drawing
project

Main Entrance Drawings

 
technical drawing
project

Main Entrance Drawings

 
3d render
project

Main Entrance

 
3d render
project

Main Entrance

 
sketch
project

Inner Patio

 




More projects

Similar projects

Slider Navigation
interior design
project

Young at Heart

Product Detailing
Spring 2019-2020
interior design
project

Residence on Rails

Advanced Detailing Studio
Fall 2020-2021
interior design
project

An Earring Store

Professional Practice
Spring 2020-2021
interior design
project

2020 Tokyo Olympics

TV Set Design
Spring 2020-2021
sketches
sketches

Hand Works

Sketches
drawings
drawings

Art Works

Drawings
interior design
project

LAB Alumni Center

Interior Design Studio VI
Spring 2020-2021
interior design
project

Community Spirit Center

Interior Design Studio I
Fall 2019-2020